ID CP2899805

Duplex zona strazii Campului.

ID CP2899805

445,000 € (negociabil)

Casă / Vilă cu 4 camere de vânzare
Manastur, Cluj-Napoca
129 mp
2026

Va prezentam spre vanzare o proprietate moderna situata in cartierul Manastur, strazii Campului, intr-un areal exclusiv de case din Cluj-Napoca, la doar cateva minute de statia de autobuz. Pozitionarea ofera un echilibru foarte bun intre intimitate, aer curat si acces rapid catre punctele de interes ale orasului.

Imobilul este edificat pe un teren de aproximativ 300 mp si are un regim de inaltime +P+E+ER cu o suprafata utila de 129 mp.

Curtea este amenajata cu pavaj, trotuare perimetrale si gazon, oferind un cadru placut pentru relaxare.

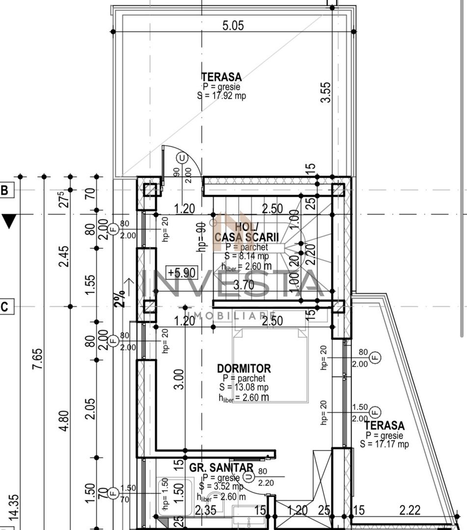
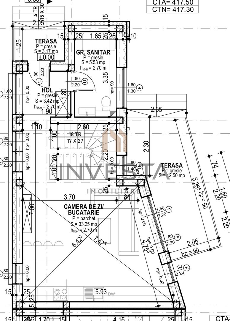
Parter:

-Hol de acces

-Baie

-Living impreuna cu bucataria.

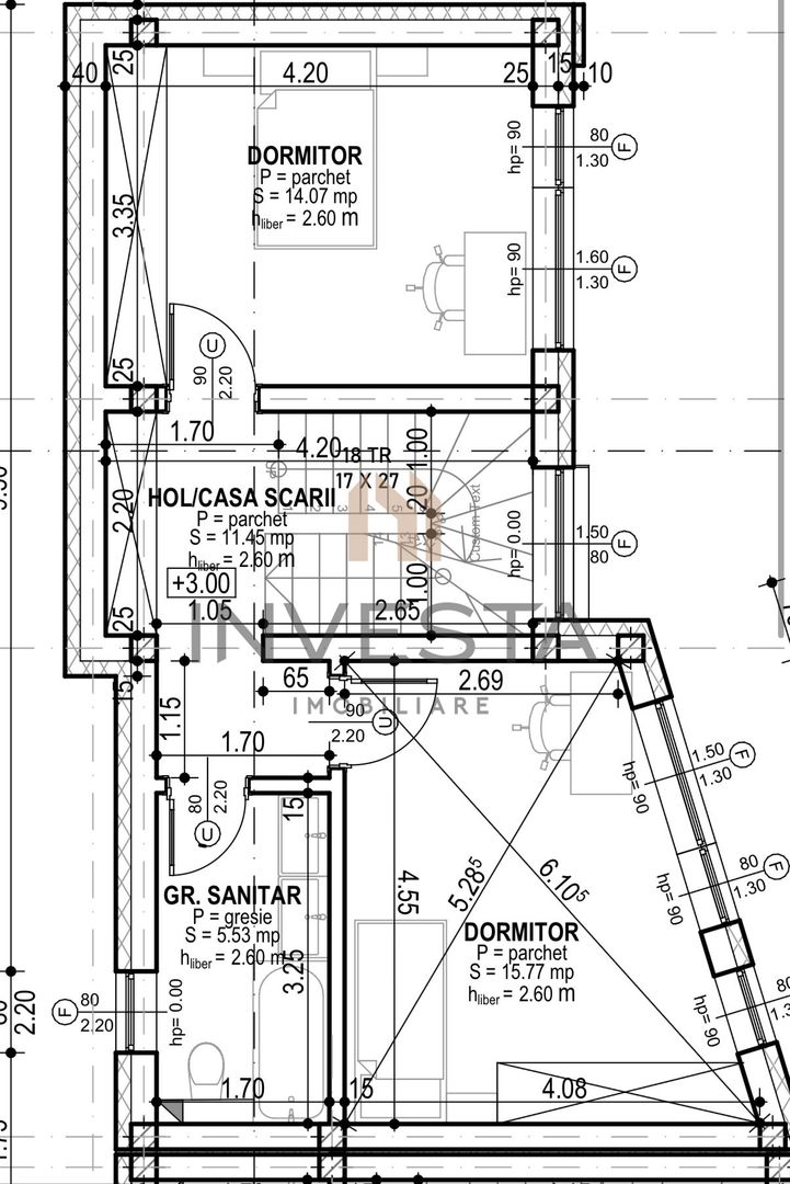
Etaj:

-Hol + casa scarii

-2 dormitoare

-1 baie

-Dressing

Etaj Retras

-Dorimitor matrimonial cu dressing si baie proprie.

Casa se preda semifinisata la interior si finisata la exterior, ceea ce permite viitorului proprietar sa isi personalizeze integral designul interior. Structura este realizata din beton armat, cu zidarie din caramida de 25 cm si termosistem exterior de 15 cm. Acoperisul este din tabla faltuita, iar tamplaria PVC este profil REHAU, cu proprietati termoizolante foarte bune. Instalatiile electrice si sanitare sunt trase la pozitie, peretii sunt tencuiti si gletuiti, iar sapa este turnata.

Sistemul de incalzire este prin pardoseala pe fiecare nivel, marca Rehau, alimentat de o centrala termica in condensare Viessmann. De asemenea, exista precablare pentru automatizare, oferind posibilitatea implementarii unui sistem smart home.

Proprietatea dispune de toate utilitatile si reprezinta o alegere potrivita pentru o familie care isi doreste o locuinta spatioasa, intr-o zona apreciata a orasului, cu posibilitatea de personalizare completa a finisajelor.

Pentru detalii suplimentare sau programarea unei vizionari, va stam la dispozitie.

Citește mai mult

  • Număr camere
    4
  • Dormitoare
    3
  • Număr bucătării
    1
  • Număr băi
    3
  • Număr terase
    2
  • Disponibilitate
    Imediat
  • Tip casă
    Duplex
  • Stare interior
    Semifinisat
  • Anul finisării
    2025
  • Suprafață utilă
    129 mp
  • Suprafață construită
    135 mp
  • Suprafață teren
    300 mp
  • Suprafață curte
    250 mp
  • Acoperiș
    Terasă
  • Stadiu construcție
    În construcție
  • An construcție
    2026
  • Construcție nouă
    Da
  • Tip construcție
    Cărămidă
  • Număr etaje clădire
    1
  • Număr etaje retrase
    1

Facilități

Apă
Bucătărie deschisă
Canalizare
CATV
Centrală proprie
Curent
Gaz
Iluminat stradal
Încălzire prin pardoseală
Internet
Izolație exterioară
Mijloace de transport în comun
Parcare deschisă
Străzi asfaltate
Telefon
Catalin Lupoian - Investa Imobiliare
Catalin Lupoian
Consultant Imobiliar

0745354519


Solicită chiar acum o vizionare
Nume
Telefon
Email
Sună acum Solicită vizionare
Necesare:

Site-ul nu poate funcționa corect fără aceste cookie-uri. Vezi cookie-urile

Statistică:

Strângem statistici anonime despre voi, vizitatorii unici, pentru a vă îmbunătăți experiența dumneavoastră. Vezi cookie-urile

Marketing:

Pentru a ne promova mai eficient serviciile noastre, folosim cookies pentru a vă identifica și a vă oferi proprietăți și servicii personalizate. Vezi cookie-urile

Acest site folosește cookies, află detalii. Alege ce tipuri de cookies dorești să permitem: