ID CP2327185

Vila Premium in cartierul Ghergheni!

ID CP2327185

740,000 € (negociabil) + 21% TVA

Casă / Vilă cu 5 camere de vânzare
Gheorgheni, Cluj-Napoca
226 mp
2025

Va prezemtam spre vanzare Vila, situat intr-o zona exclusivista de case din cartierul Gheorgheni, pe o artera secundara in zona strazii Vasile Lupu.

Proprietatea beneficiaza de un design inteligent, spatii generoase si o compartimentare optima pentru confort si functionalitate.

Datorita pozitionarii, are acces rapid catre Centru, Centre comerciale, scoli, gradinite si alte puncte de interes.

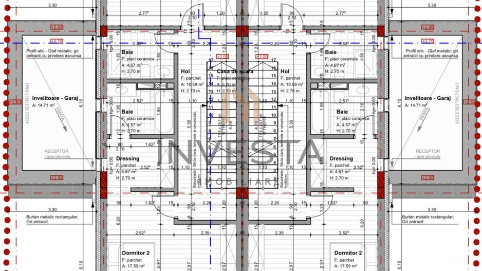
Regimul de inaltime este Subsol + Parter + Etaj 1 + Etaj retras, detine o suprafata utila de 226 mp, fiind compartimentat astfel:

-Subsol (56 mp): hol de acces, baie, spalatorie si camera tehnica.

-Parter (73.75 mp): living spatios open-space cu bucatarie si loc de luat masa, hol, baie, dressing si acces pe terasa de 15 mp, ce duce spre gradina proprie.

-Etaj 1: dormitor matrimonial cu dressing si baie proprie, un dormitor secundar, baie separata si hol.

-Etaj retras (33 mp): camera multifunctionala (birou, biblioteca sau spatiu de relaxare) cu acces pe o terasa de 34 mp.

Dispune si de 1 garaj si 1 loc pentru parcare.

Se preda la stadiul semifinisat cu:

-Centrala termica proprie

-Incalzire in pardoseala

-Geamuri termoizolamte din PVC;

-Pereti finisati cu glet;

-Instalatii sanitare si electrice pe pozitie;

-Usa metalica la intrare;

La constructia lui se folosesc zidarie din caramida Porotherm de 25 cm, asigurand rezistenta, izolare fonica si confort termic. Exteriorul este finisat cu izolatie din polistiren de 15 cm, optimizand consumul energetic si oferind protectie impotriva variatiilor de temperatura. Aceste materiale garanteaza durabilitate si eficienta pe termen lung.

Vila este construita pe un teren de 305 mp, oferind un cadru ideal pentru confort si intimitate. Suprafata construita este optim organizata, iar proprietatea dispune de 233 mp de teren liber, perfect pentru amenajarea unei gradini, a unui spatiu de relaxare sau a unei zone de joaca. Aceasta curte privata adauga un plus de valoare si functionalitate locuintei, oferind multiple posibilitati de utilizare.

Proprietatea se vinde de pe firma, in cazul persoanelor fizice la pret se adauga TVA!

Ca modalitate de plata se poate achiztiona si prin credit, avansul minim accepta fiind de 35%.

Pentru mai multe detalii sau pentru a programa o vizionare, nu ezitati sa ne contactati. Aceasta proprietate reprezinta o oportunitate unica de a va bucura de confort, spatiu si locatie premium in Cluj-Napoca. Va asteptam cu drag sa descoperiti potentialul acestei case!

Citește mai mult

  • Număr camere
    5
  • Dormitoare
    4
  • Număr bucătării
    1
  • Număr băi
    2
  • Geam la baie
    Da
  • Număr terase
    2
  • Număr garaje
    1
  • Număr locuri parcare
    1
  • Disponibilitate
    Imediat
  • Tip casă
    Calcan
  • Stare interior
    Semifinisat
  • Suprafață utilă
    226 mp
  • Suprafață construită
    300 mp
  • Suprafață construită la sol (Amprentă)
    72.0 mp
  • Suprafață teren
    305 mp
  • Suprafață curte
    233 mp
  • Suprafață curte liberă
    233 mp
  • Suprafață terasă
    49 mp
  • Deschidere
    11 m
  • Acoperiș
    Terasă
  • Stadiu construcție
    În construcție
  • An construcție
    2025
  • Construcție nouă
    Da
  • De la dezvoltator
    Da
  • Tip construcție
    Cărămidă
  • Număr etaje clădire
    2
  • Număr subsoluri
    1

Facilități

Apă
Apometre
Bucătărie deschisă
Canalizare
Centrală proprie
Contor căldură
Contor electric
Contor gaz
Curent
Ferestre PVC
Garaj
Gaz
Geamuri tripan
Glet
Grădină proprie
Încălzire prin pardoseală
Izolație exterioară
Nemobilat
Șapă
Scară interioară
Spălătorie
Telecomandă poartă acces auto
Telecomandă poartă garaj
Ușă intrare metal
Uscătorie
Videointerfon
Catalin Lupoian - Investa Imobiliare
Catalin Lupoian
Consultant Imobiliar

0745354519


Solicită chiar acum o vizionare
Nume
Telefon
Email
Sună acum Solicită vizionare
Necesare:

Site-ul nu poate funcționa corect fără aceste cookie-uri. Vezi cookie-urile

Statistică:

Strângem statistici anonime despre voi, vizitatorii unici, pentru a vă îmbunătăți experiența dumneavoastră. Vezi cookie-urile

Marketing:

Pentru a ne promova mai eficient serviciile noastre, folosim cookies pentru a vă identifica și a vă oferi proprietăți și servicii personalizate. Vezi cookie-urile

Acest site folosește cookies, află detalii. Alege ce tipuri de cookies dorești să permitem: